137  viviendas (VPO – Régimen general), garajes, trasteros y locales comerciales. (Toledo)

Descripción del proyecto

 

  • Fecha: 2010
  • Estatus: Anteproyecto
  • Dirección:   Parcela  P-63-A, IV Fase residencial del barrio de Santa María de Benquerencia, Toledo 
  • Cliente: EMV Ayuntamiento de Toledo
  • Autores: Carlos Exposito Mora y Emilio Miguel Mitre
  • Diseño: ALIA, Arquitectura, Energía y Medio Ambiente S. L.

Planos

Infografías

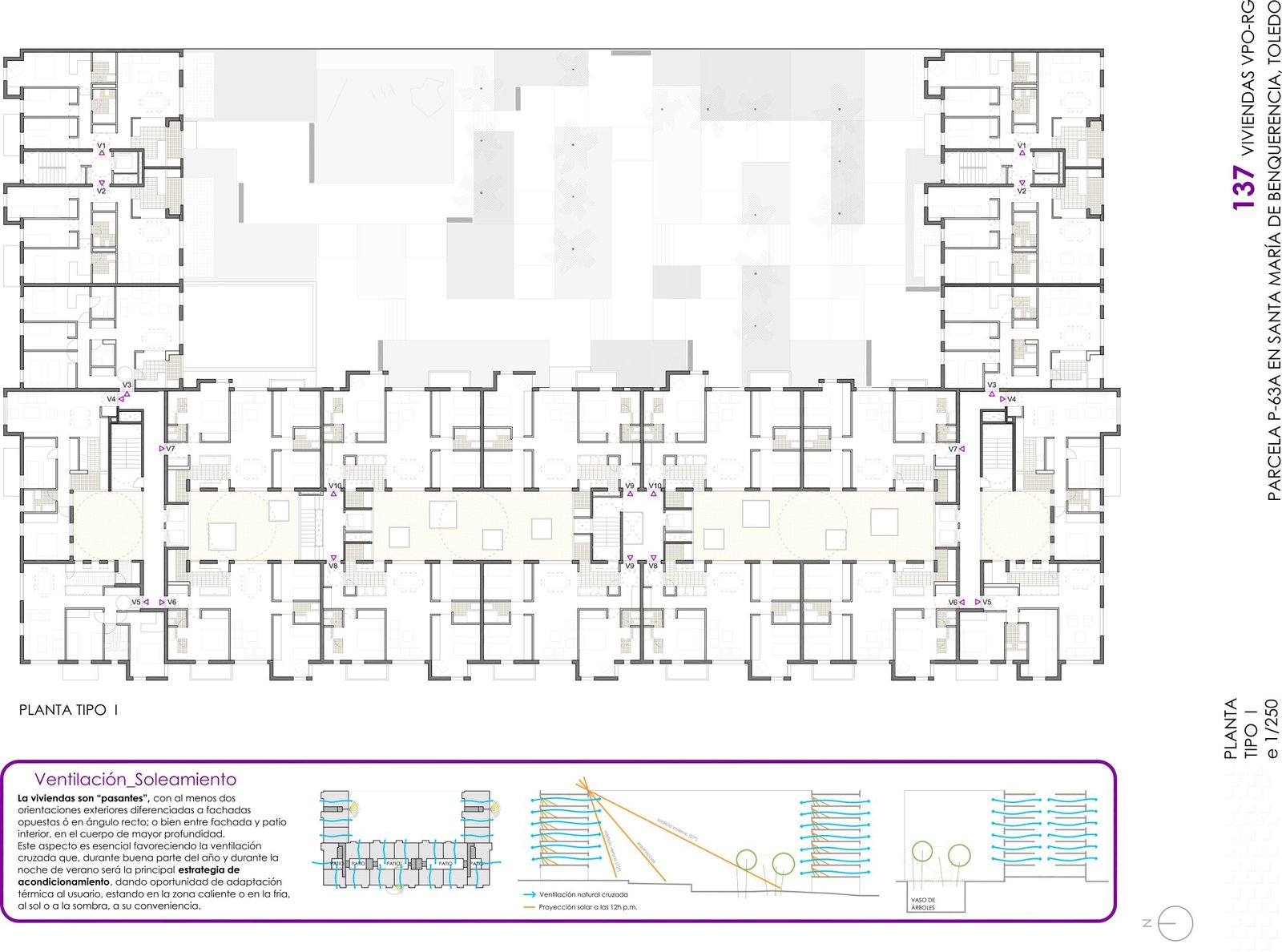
Criterios de eficiencia energética