Concurso Edificio Instituto Nacional de la Seguridad Social (INSS) (Valladolid)

El proyecto ha de convertirse en la Oficina Integral y el edificio representativo de la Seguridad Social en Valladolid. En este sentido debe, al tiempo que incorpora el programa necesario, adquirir una imagen institucional.

Descripción del proyecto

  • Fecha: 2007
  • Estatus: Anteproyecto
  • Dirección: Valladolid
  • Cliente: INSS (Instituto Nacional de la Seguridad Social)
  • Autores del proyecto: Emilio Miguel Mitre, Carlos Expósito Mora Y Jesús A. Tejedor Sánchez
  • Diseño: ALIA, Arquitectura, Energía y Medio Ambiente S. L.

 

Descripción

El proyecto ha de convertirse en la Oficina Integral y el edificio representativo de la Seguridad Social en Valladolid. En este sentido debe, al tiempo que incorpora el programa necesario, adquirir una imagen institucional.

El edificio se genera con la función simbólica de proteger al ciudadano.

La lámina que se pliega crea un espacio protegido bajo ella, donde se generan los espacios públicos que son el atrio de recepción y espera, la zona de atención y un soportal exterior en la calle más próxima a la Cañada Real. La lámina plegada es perforada para dar altura y luz al atrio central. Se completa la idea de protección del ciudadano con el tratamiento bioclimático del atrio, creando una piel exterior que filtra el paso del sol en función de la estación del año.

La malla tridimensional recoge las tres direcciones del espacio, disponiendo los tres volúmenes separados por sus usos y desplazándolos hacia los bordes noreste y noroeste de la parcela, de esta manera contribuyen a la protección climática del espacio público.

Distribución funcional

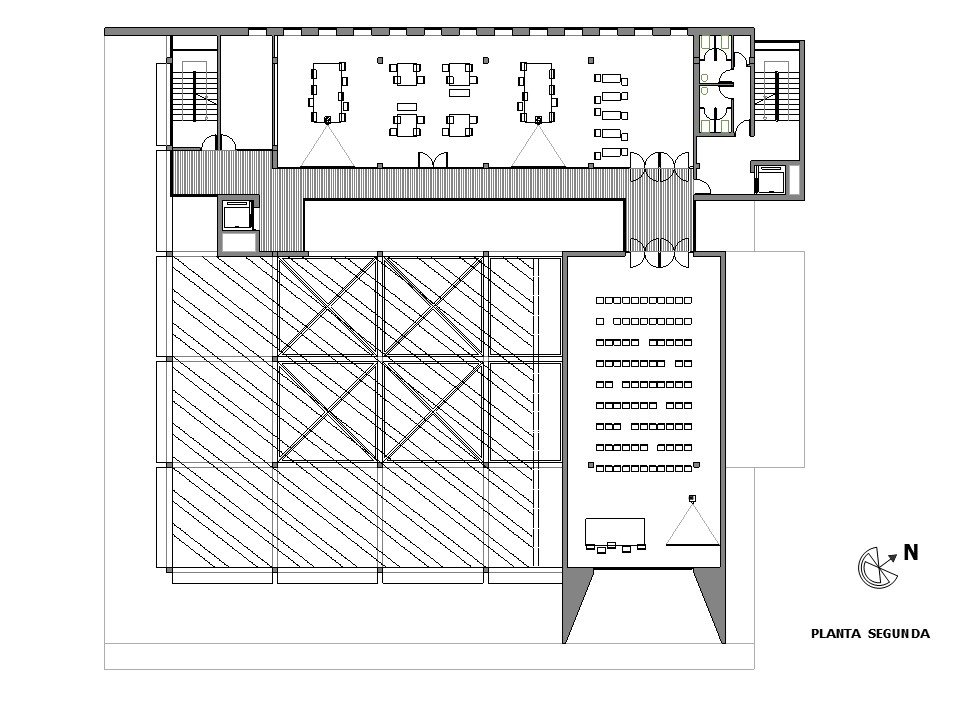
El edificio se genera partiendo de la idea de un espacio central protegido desde el que se organizan centrífugamente las distintas áreas de trabajo. Las circulaciones se producen perimetralmente al atrio central. Se accede desde el soportal protegido creado por la lámina que se pliega y que separa las áreas de uso público de las de uso privado, llegando al espacio de espera a doble altura. Los espacios servidores del atrio se organizan en una zona lateral, las áreas de atención ocupan el resto de los lados del espacio central.

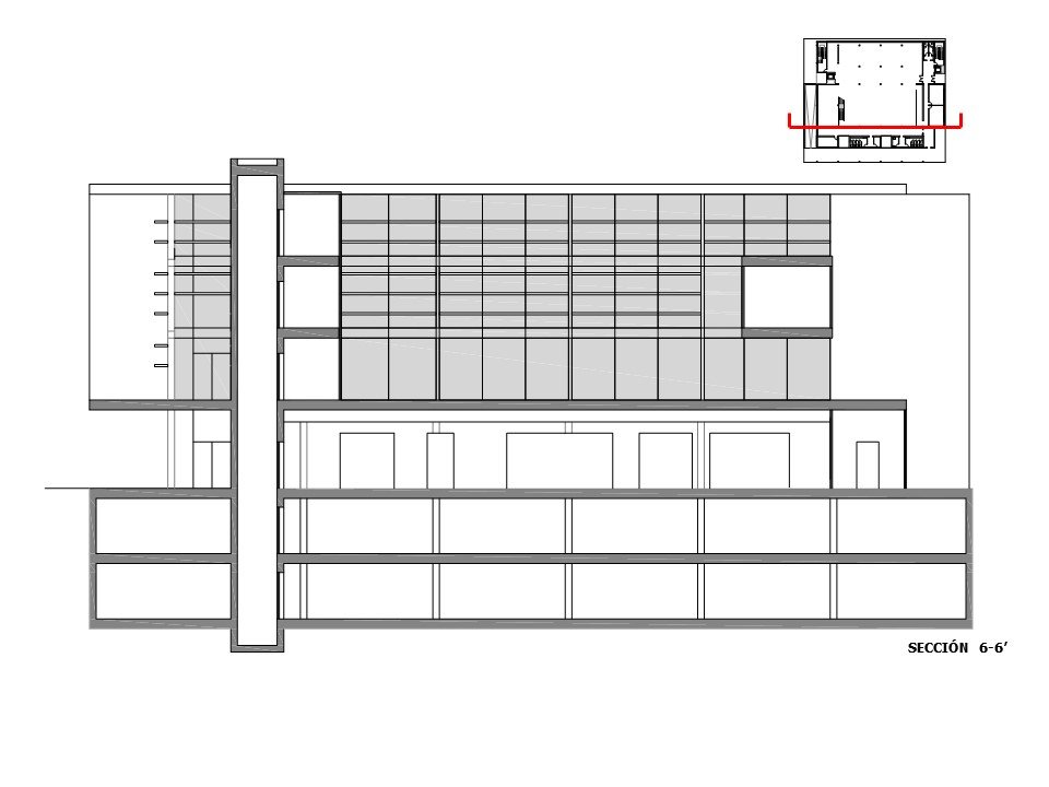
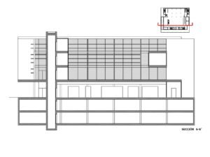
El acceso a la primera planta se produce por una escalera liviana que comunica con un distribuidor longitudinal en torno al cual se sitúan las áreas de atención al público. En la primera planta se comienza a percibir la doble piel del edificio: el atrio central no ocupa toda la altura del edificio, creando así un espacio más protegido y con una escala más humana que lo que se podría suponer desde el exterior. Las circulaciones se producen en esta planta de forma lateral al atrio, que se percibe en toda su altura. La segunda piel, que supone la imagen exterior del edificio, configura un espacio protegido pero ventilado gracias a las lamas horizontales que contribuyen al funcionamiento bioclimático del edificio.

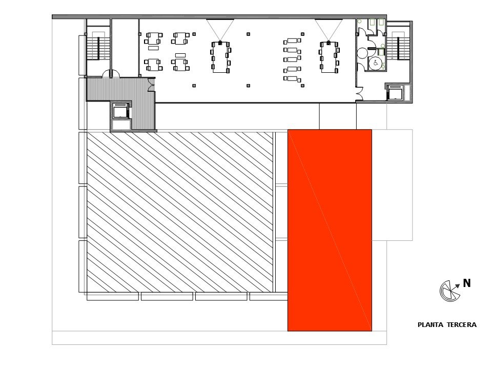
La segunda planta se sitúa por encima del techo del atrio, separándose de éste gracias a la grieta que recorre el edificio en toda su longitud. Desde el corredor se percibe el exterior a través de las lamas/parasoles horizontales. En esta planta se sitúan una de las salas de reuniones y la sala polivalente que al exterior es la gran caja roja suspendida, imagen del edificio.

La última planta está configurada por la sala de reuniones de uso más privado. Los huecos se abren hacia el espacio central para percibir el juego de techos y de transparencias: el techo del atrio en un primer nivel, el techo de chapa y el de la caja roja, que sobresale. Se comprende el edificio de un vistazo, con el espacio central que recoge las tres direcciones del espacio. 

 Memoria de calidades

Materiales: panel prefabricado de hormigón armado en lámina plegada. Chapa metálica de zinc-titanio en subestructura, parasoles y lamas horizontales. Revestimiento de madera en caja norte y prisma de alzado sureste. Chapa lacada en panel sándwich en sala polivalente. Aplacado de pizarra en fachada noroeste. Muro cortina en fachadas del atrio, en alzados con orientación sureste y suroeste.

Principales sistemas constructivos

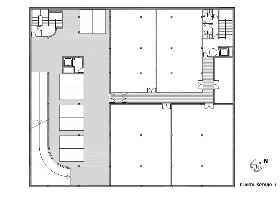
Cimentación y muros de sótano: Zapata corrida bajo muro de sótano de hormigón armado y zapatas asiladas bajo pilares. Será preciso verificar las características físicas del terreno. En el caso de no poder disponer temporalmente de los terrenos circundantes –calificados como espacios libres por el PGOU- la solución de los muros deberá ser la de muro pantalla.

Red horizontal de saneamiento: enterrada de polietileno, con arquetas de fabrica y sumideros sifónicos para el suelo del garaje del segundo sótano. Será preciso disponer un sistema de bombeo para evacuar las aguas residuales producidas por debajo de la cota de rasante.

Estructura aérea: El planteamiento de retícula de pilares de luces de 6 metros y la disposición de grandes vuelos en los techos de las plantas baja y tercera hacen suponer adecuadas las soluciones con prelosa armada, forjado reticular y losas armadas, o alguna combinación de las anteriores, todas ellas en hormigón armado.

Será precisa una estructura metálica ligera para la sujeción de los sistemas de acristalamiento y acondicionamiento solar de la zona del atrio.

Fachadas: Se proponen en general soluciones constructivas de fachada ventilada –que ayudará a disipar calor en verano- en todos los cerramientos opacos, éstos tendrán una hoja pesada interior de medio pie de ladrillo perforado, asilamiento exterior de ocho a diez centímetros de aislamiento –en función de las orientaciones- de poliuretano proyectado; subestructura auxiliar exterior anclada a los cantos de forjado para la sujeción del acabado exterior –según la memoria de calidades- ; trasdosado interior directo con perfiles omega de doble placa de cartón yeso.

Las fachadas acristaladas serán de muro cortina de perfilería oculta.

Parasoles horizontales de fachada y “zetas” en cubierta de chapa plegada de zin titanio sobre bastidores de tubo de acero galvanizado.

Cubiertas: se establecen dos tipos: transitables y no transitables. Todas ellas son cubiertas horizontales, pesadas y del tipo de cubierta invertida. Tendrán formación de pendiente aligerada, lámina geotextil, doble lámina asfáltica armada de impermeabilización, lámina geotextil y acabado según memoria de calidades

También existen lucernarios acristalados sobre el atrio, son de dos tipos. El primero es piramidal con doble acristalamiento con cámara de aire de 150 mm rellena de aislamiento de poliestireno expandido con perforaciones circulares de 3cm de diámetro estampadas al tresbolillo con separaciones entre centros de 8cm. El segundo tipo es plano, de doble acristalamiento, está situado en la unión del atrio con la sala polivalente colgada.

El planteamiento bioclimático

Las claves del modo de ser bioclimático del edificio, que son fundamentalmente de protección y de utilización de energías renovales (tanto en invierno como en verano), vienen dadas por los siguientes componentes o estrategias:

 

Orientación

          Debido a la orientación de la parcela las orientaciones de los volúmenes son fundamentalmente SE y SO. Se ha procurado una disposición volumétrica que no deje grandes superficies del inmueble permanentemente sombreadas, llevando los volúmenes construidos de mayor tamaño a los bordes noreste y noroeste de la parcela. El atrio público se orienta al sur.

Gran aislamiento térmico de las superficies de la envolvente

El empleo de grandes espesores de materiales aislantes en la solución constructiva de los cerramientos reducirá las necesidades térmicas del inmueble, fundamentalmente en temporada de calefacción en invierno. La solución constructiva utilizada, con fachadas independizadas de la estructura, permitirá suprimir prácticamente los puentes térmicos y lograr una muy baja transmisión térmica por conducción.

Tratamiento diferenciado de las fachadas en función de sus orientaciones solares

Combinado con el apartado anterior se propone hacer fachadas muy cerradas al norte, con pocos huecos, de manera que el edificio se recoja en esas orientaciones.

En cambio en las orientaciones SE y SO el edificio se abre hacia el exterior procurando obtener la mayor ganancia solar posible en los meses de invierno y evitar el soleamiento excesivo en los meses de verano. Para conseguir este objetivo estas fachadas se proponen con grandes superficies acristaladas con parasoles de lamas fijas horizontales, separadas del cerramiento. El diseño de la profundidad de las lamas y la separación entre ellas bloquea la incidencia solar en el periodo comprendido entre el 21 de marzo y el 21 de septiembre, periodo en el que el sol incide con un ángulo mayor sobre la horizontal; en cambio en invierno la incidencia solar se produce con un ángulo más tendido que permitirá el soleamiento y caldeamiento de los espacios interiores.

Fachada ventilada

Como continuación de lo anterior, pero en la búsqueda del mejor comportamiento posible en verano, la envolvente se diseña con solución de fachada ventilada, que permite la evacuación del calor de la radiación solar incidente.

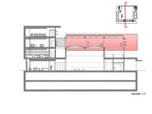
Atrio público como aparato solar de verano e invierno

El atrio proyectado, que ha de albergar al público que espera ser atendido, ofrece una gran superficie acristalada al sur, tanto en sus fachadas sureste y suroeste      como en su cubierta. En apartados anteriores se ha descrito como se protege del sol las fachadas acristaladas, pues bien, los elementos para sombrear se proponen como un sistema integral que protege tanto a las fachadas del atrio como a su cubierta. De esta manera se ha proyectado un gran “palio” que sombrea todo el conjunto. Además de las lamas de fachada se instalan unos lucernarios lineales que son láminas metálicas plegadas que funcionan como un sistema de protección pasivo que permitirá el paso de los rayos solares desde el 21 de septiembre al 21 de marzo y que lo impedirá el resto del año.

El conjunto de lamas y lucernarios está integrado en una estructura metálica exterior despegada del cerramiento acristalado creando un espacio exterior sombreado y ventilado (umbráculo) que refrescará el ambiente en verano. Para completar el sistema de climatización natural pasiva del atrio se dispondrán en la cara noroeste tomas de aire climatizado mediante filtros húmedos.

Es de particular interés la cubierta del atrio, que es acristalada pero no en el sentido convencional, ya que el acristalamiento encierra un aislamiento de 15 cm con perforaciones de iluminación natural. De este modo se conjuga la necesidad de aislamiento con la de iluminación natural.

Ventilación

Uso de rejillas comandadas manual y automáticamente para la ventilación de las plantas de despachos y  salas de reuniones. El control automático permitirá dejar todas abiertas durante las noches de verano propiciando el descenso de la temperatura del edificio por convección gracias a la circulación natural de aire fresco exterior. En invierno, las rejillas permanecerán cerradas durante la noche para impedir la pérdida de calor. El uso diurno se deja a voluntad de los usuarios.

Uso de fuente energética renovable integral para climatización

Considerando el balance energético anual, hasta el 95% del consumo de acondicionamiento puede abastecerse de fuente renovable basada en la producción de energía eléctrica fotovoltaica, en instalación conectada a la red. Las células captadoras se ubican en las superficies horizontales de los parasoles y lucernarios explicados anteriormente.

El porcentaje de este aporte dependerá del uso que se haga del edificio, según las hipótesis que se indican en la siguiente tabla energética, que compara la demanda de electricidad para climatización con el aporte de electricidad fotovoltaica. La hipótesis favorable puede alcanzarse con una regulación y unas consignas de confort estrictas, mientras que la hipótesis desfavorable representa un uso menos exigente.

Incluso en el caso de que el aporte de electricidad fotovoltaica sea sólo el 50% de la demanda eléctrica de climatización, el balance económico anual resultará muy positivo debido a la diferencia entre el precio de venta de la energía eléctrica de fuente renovable y el de compra de la energía eléctrica de la red.

Acondicionamiento de alta eficiencia energética.

El anterior apartado es posible gracias por un lado a la moderación de la demanda como consecuencia del diseño bioclimático del edificio, y por otro, al uso de sistemas de climatización de alto rendimiento. Para ello se han seleccionado los siguientes componentes:

  • Bomba de calor eléctrica, para funcionamiento en calor y frío, utilizando equipos convencionales muy experimentados, con mantenimiento sencillo y de alto rendimiento o COP.
  • Acoplamiento geotérmico, que constituye un foco caliente / frío mucho más estable que el aire exterior y permite alcanzar COPs todavía más elevados. Permite suprimir también toda la problemática higiénica derivada de las torres de refrigeración.
  • Distribución interior basada fundamentalmente en suelo radiante, tanto para calentamiento como para refrescamiento
  • Ventilación asistida sólo en los espacios que, por su forma o sus patrones de uso lo requieran expresamente (atrio y sala de subastas). Esto permite reducir notablemente el consumo eléctrico de ventilación.
  • Ventilación natural, no asistida en el resto
Gestión bioclimática

La utilización conjunta de este conjunto de estrategias hará que el edificio pueda acondicionarse de modo natural a lo largo de una parte importante del año, y con poco consumo el resto.

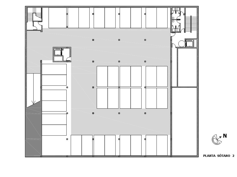
Planos

Infografía

Bioclimática