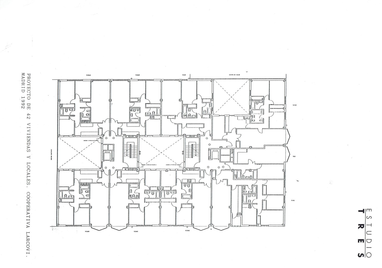
Edificio 42 viviendas VPO. (Madrid)

Descripción del proyecto

  • Fecha: 1991-1994
  • Estatus: construido
  • Dirección: CL. García Noblejas, Madrid
  • Cliente: Cooperativa Larcovi
  • Autores del proyecto: Carlos Expósito Mora, Agustín Hernández Aja, Carlos Las Heras Merino, Fernando Caballero y Guillermo Campuzano. 
  • Diseño: ALIA, Arquitectura, Energía y Medio Ambiente S. L.

 

?Ganador en Concurso Público de suelo de la EMVS de MADRID PLAN 18000 en el 1990

Planos

Fotografías 

Ficha resumen