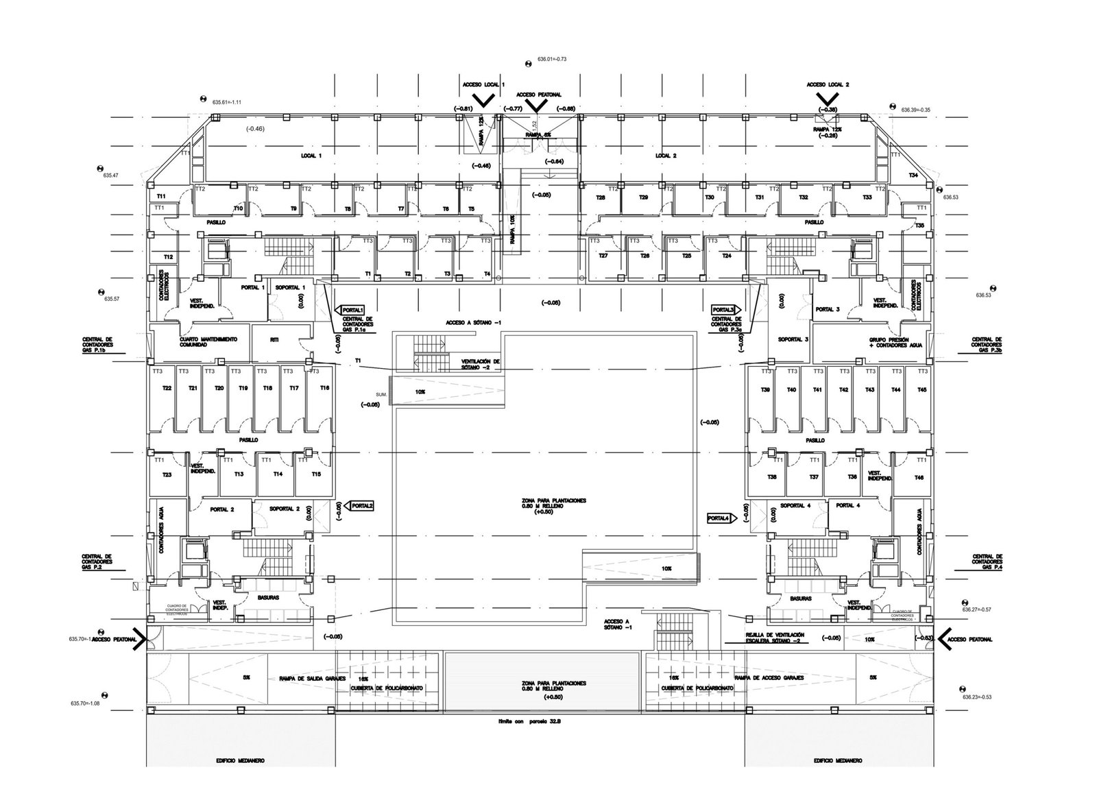
Edificio 46 viviendas VPT. (Madrid)

Descripción del proyecto

  • Fecha: 2002-2007
  • Estatus: Construido
  • Dirección: Parcela 32.A El Bercial – Universidad, Getafe 
  • Cliente: Punto y Coma de Gestión Inmobiliaria Cooperativa
  • Autores del proyecto: Emilio Miguel Mitre y Carlos Expósito Mora
  • Diseño: ALIA, Arquitectura, Energía y Medio Ambiente S. L.

 

Planos

Fotografías

Ficha resumen

Infografías