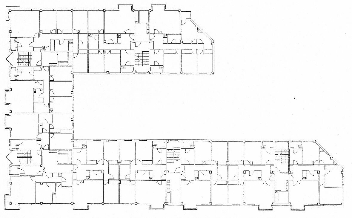
Edificio 69 viviendas VPO. (Madrid)
Descripción del proyecto
- Fecha: 1992-1994
- Estatus: Construido
- Dirección: CL. Villafuerte – Espinillo, Madrid
- Cliente: PLAZAOLA, GESTIÓN INTEGRAL
- Autores del proyecto: Carlos Expósito Mora, Agustín Hernández Aja y Carlos Las Heras Merino
- Diseño: ALIA, Arquitectura, Energía y Medio Ambiente S. L.