Edificio Stella Feuga. (Santiago de Compostela)

El edificio de la Fundación Empresa Universidad Gallega en Santiago de Compostela integra, en 3.000 m2 construidos, las funciones propias de la sede de la Fundación con un área de experimentación empresarial, una zona educativa, un auditorio y los espacios interiores de comunicación, ya que cada función ha de funcionar de manera autónoma.

Descripción del proyecto

  • Fecha: 1995
  • Estatus: Construido
  • Dirección: Santiago de Compostela
  • Cliente: Fundación Empresa Univ. Gallega (FEUGA)
  • Autores del proyecto: Emilio Miguel Mitre, Carlos Expósito Mora.
  • Diseño: ALIA, Arquitectura, Energía y Medio Ambiente S. L.

 

Descripción

El edificio de la Fundación Empresa Universidad Gallega en Santiago de Compostela integra, en 3.000 m2 construidos, las funciones propias de la sede de la Fundación con un área de experimentación empresarial, una zona educativa, un auditorio y los espacios interiores de comunicación, ya que cada función ha de funcionar de manera autónoma.

Es un edificio diseñado para conseguir un elevado nivel de ahorro energético (estimado en torno al 75% según las simulaciones previas) al tiempo que una mayor calidad ambiental interior que un edificio convencional con aire acondicionado.

Esto se consigue por medio de un diseño arquitectónico orientado a tal efecto, con integración de instalaciones solares y de bajo consumo, y por medio de una gestión energética adecuada.

El diseño integra elementos arquitectónicos tradicionales, como son la galería gallega y las fachadas ciegas de granito, tan típicas de Santiago de Compostela, con soluciones energéticas muy innovadoras (la galería por ejemplo permite captar o evacuar calor según convenga) que permitan alcanzar los resultados previstos.

Todo esto ha podido realizarse con un sobrecoste muy moderado sobre los precios.

 

Memoria descriptiva

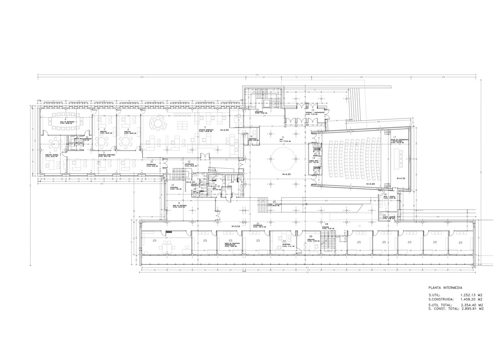
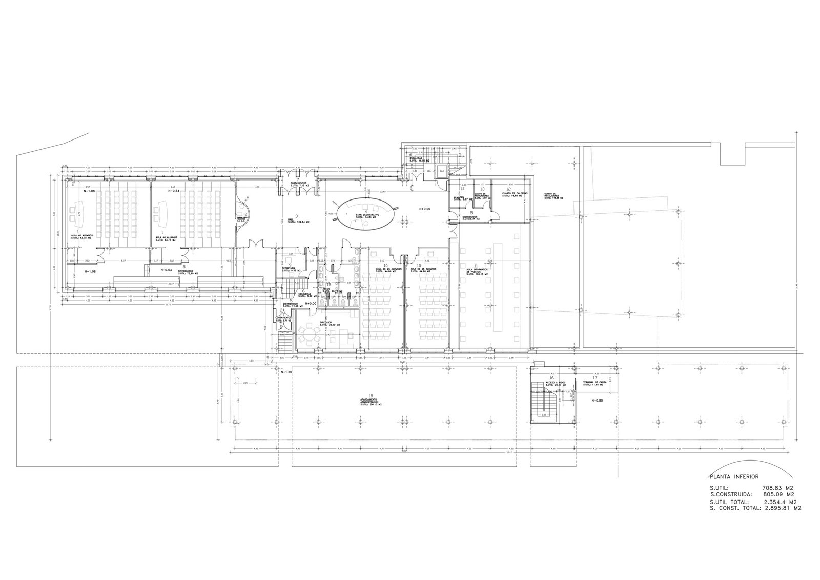
El edificio es un conjunto de cuerpos diferenciados, con un uso específico definido en el programa de necesidades, que se relacionan a través de una pieza de menor dimensión que el conjunto, la cual compone el acceso y hall de recepción.  Los nidos, las oficinas operativas y el salón de actos, en cercanía de la escena urbana que se desarrolla a sus espaldas han buscado la lógica de la ocupación del terreno cedido, en orden de evitar una excesiva profundización del mismo, dada la complicada topografía.

 La sección transversal trata de adaptarse al terreno existente, intentando no escurrirse pendiente abajo, produciendo con el movimiento de tierras una plataforma alta y otra baja. Longitudinalmente, aunque con más problema se intenta conseguir el mismo equilibrio.

 Tras haberse generado su primaria forma de ser, se completa y aporta definición buscando un mejor comportamiento frente a los condicionantes térmicos e higrométricos del entorno, procurando su  transformación en un edificio acondicionante. Fruto de ello al esquema inicial se le adosan el funcionamiento de galería al sur y la fachada pesada al norte. Sus espacios interiores se adaptan con facilidad gracias a la existencia de espacios sobre falso techo que funcionan como plenum de ventilación.

 El edificio STELLA debe albergar, como función fundamental, la nueva sede de FEUGA, la Fundación Empresa – Universidad Gallega, con capacidad para sus propios espacios administrativos y de dirección. Además de esta función 1, el edificio contará con la función 2, área de experimentación empresarial o incubadora de empresas, y con la función 3, área de educación.

 El edificio se distribuye en tres plantas, de modo que cada una de las funciones pueda operar separadamente (la 1 en la planta principal o intermedia, la 2 en las plantas intermedia y superior y la 3 en la planta inferior). Las tres funciones se relacionan entre sí a través del hall en torno a atrio de dos plantas, comunicado con el salón de conferencias y proyecciones o auditorio principal al este y con un área de descanso al oeste.

Gestión energética

El edificio Stella FEUGA cuenta con un sistema de control integrado o BEMS (Building Energy Management System) que permita el uso combinado de los sistemas energéticos bioclimáticos, solares e híbridos con los sistemas energéticos convencionales. El objetivo es alcanzar el mayor grado de confort posible con el menor consumo posible.

 Este sistema de gestión es suficientemente flexible para permitir modificaciones (por software) en los valores de ajuste de las variables que rigen su funcionamiento. Estas modificaciones se basarían en la experiencia del uso del edificio de modo que pueda afinarse su funcionamiento y los resultados de confort y energéticos.

 El edificio utiliza para su climatización sistemas bioclimáticos e híbridos, sistemas solares activos y sistemas convencionales. Básicamente el modo de operación ha de dar prioridad a los sistemas de menor consumo energético frente a los convencionales.

 Está proyectado de modo que las pérdidas o ganancias de calor indeseadas sean las mínimas gracias, tanto en verano como en invierno, al diseño de su aislamiento y a calidad y puesta en obra de sus ventanas, con un reducido nivel de infiltración.  El edificio permitirá sin embargo (sobre todo por su orientación) maximizar las ganancias deseadas de calor en invierno y maximizar las pérdidas en verano, al tiempo que cuenta con un elevado nivel de inercia interior que le permite acumular calor o frío (según se necesite) y moderar sus fluctuaciones térmicas. El aparejo de los principales paramentos acumuladores de calor es tal que permite la percepción por parte del habitante, mejorando la sensación de confort.

 Todo esto es lo que se denomina diseño bioclimático, cuya aportación se traduce en esencia en: a) calentamiento por radiación solar en invierno (sobre todo a través de la galería) combinado con un buen uso de la masa y del aislamiento, y b) refrigeración de verano por ventilación nocturna combinada con un buen uso de la masa, más ventilación diurna cruzada promovida por efecto chimenea de la galería y del atrio, junto con estrategias de sombreamiento y refrigeración evaporativa en cubierta. Más abajo se describe esto en detalle.

 En cuanto a los sistemas convencionales, se separa el aspecto de aporte de calor o frío para la climatización del espacio del de aporte de calor o frío para la climatización del aire de renovación. El primero se realiza por distribución de suelo radiante y el segundo tiene lugar por medio de unidades distribuidas de tratamiento de aire o pequeñas U.T.A.s con baterías frías o calientes y toma de aire directamente del exterior, sobrepresionando al edificio. El aporte de calor o frío proviene de una caldera de gas en el caso del calor y de un refrigerador por absorción basado en agua caliente solar y apoyado por gas en el caso del frío.

? Edificio seleccionado en el 2001 por el comité del Green Building Challenge español como uno de los representante de España en la Conferencia Internacional “Sustainable Building 2002” de Oslo

Planos

Fotos

Bioclimática