Rehabilitación edificio Plaza Santa Ana. (Madrid)

Descripción del proyecto

  • Fecha: 2001 
  • Estatus: Anteproyecto
  • Dirección: Plaza de Sanra Ana. Madrid.
  • Cliente: Hoteles e inmuebles, S.A. (Hoinsa)
  • Autores del proyecto: Emilio Miguel Mitre, Carlos Expósito Mora.
  • Diseño: ALIA, Arquitectura, Energía y Medio Ambiente S. L.

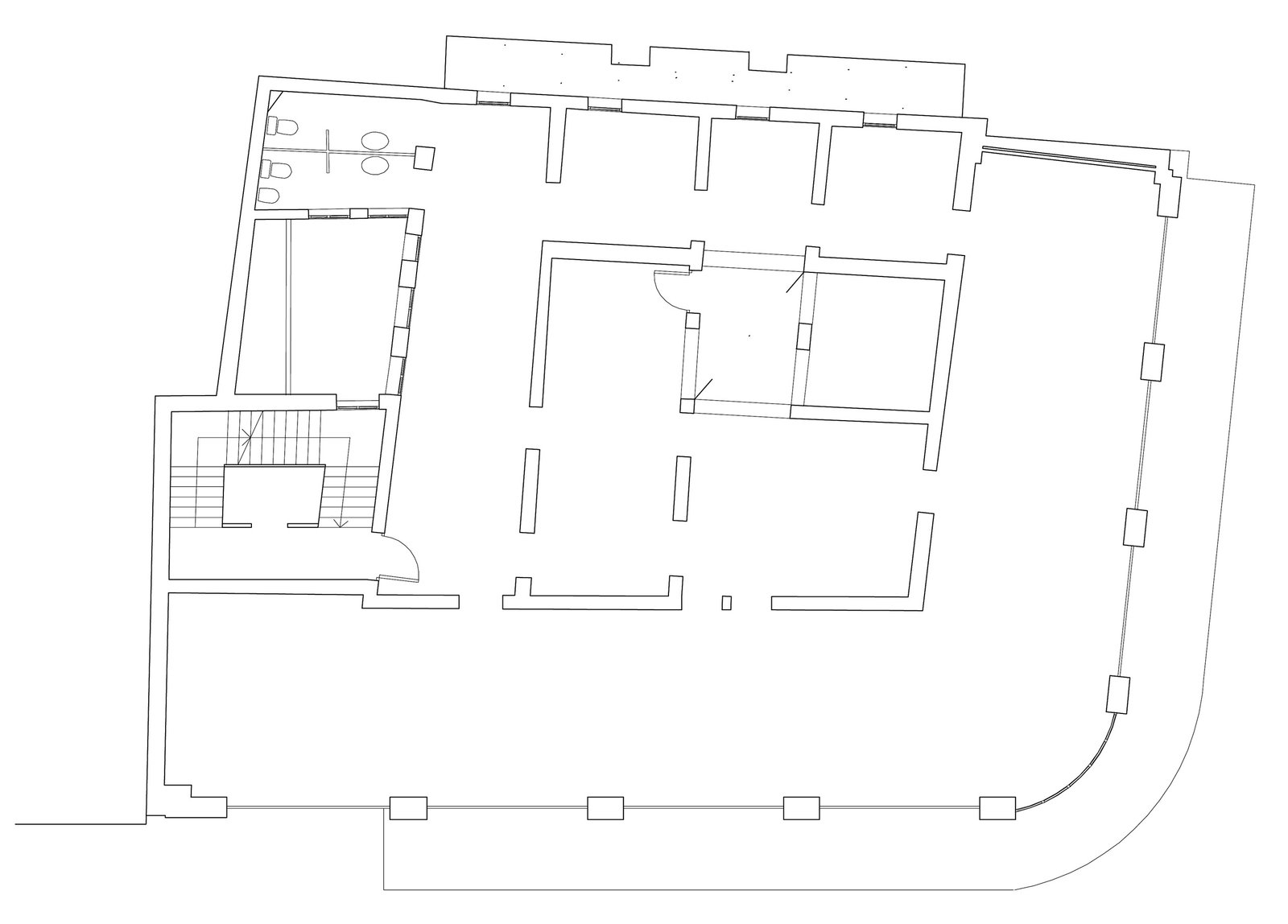
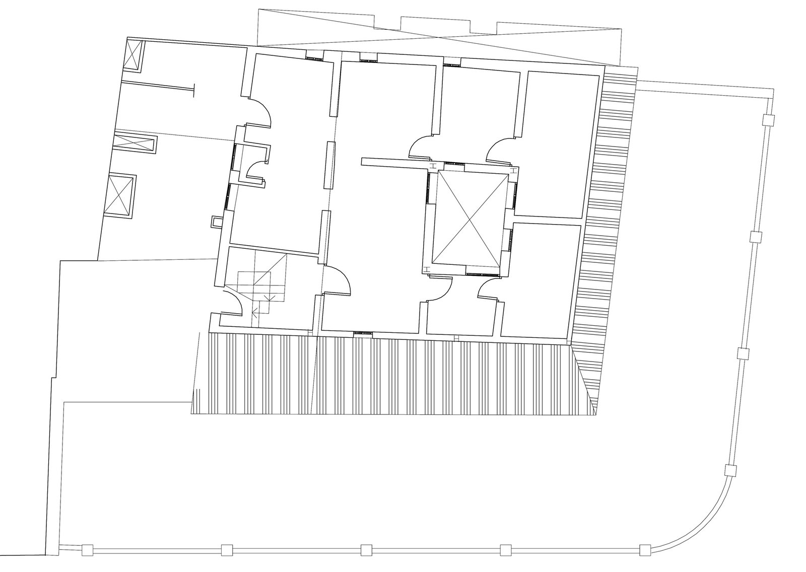
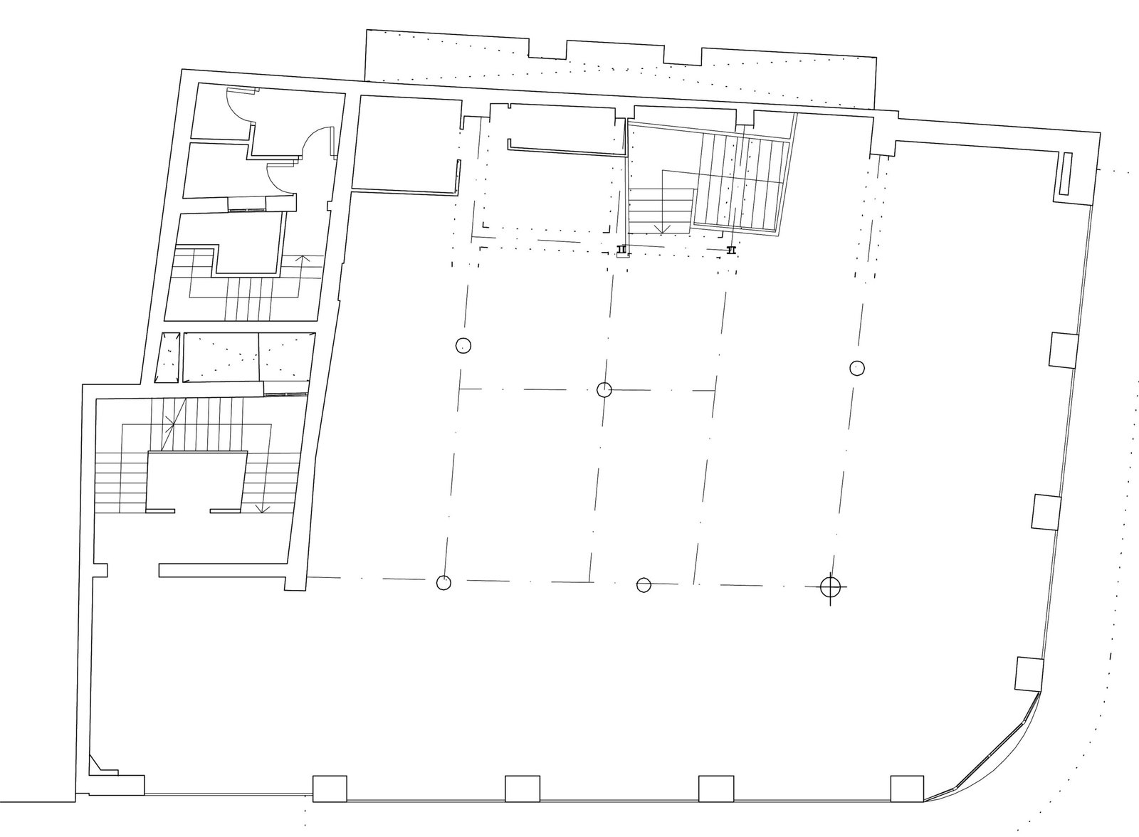
Planos

Fotos

Ficha

Renders