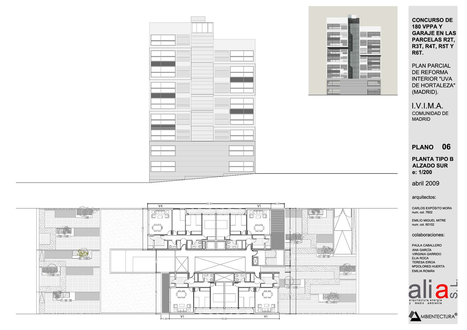
180 viviendas VPPA y garaje. (Madrid)

Descripción del proyecto

 

  • Fecha: 2009
  • Estatus: Anteproyecto
  • Dirección:  Parcela R2T, R3T, R4T, R5T, R6T del Plan Parcial de Reforma Interior UVA de Hortaleza, Madrid 
  • Cliente: IVIMA
  • Autores: Carlos Exposito Mora y Emilio Miguel Mitre
  • Diseño: ALIA, Arquitectura, Energía y Medio Ambiente S. L.

?Segundo puesto en Concurso Público del IVIMA en el 2009

Planos

Infografías

Criterios de eficiencia energética